X-Mas
 
G I S Haus Helios

G I S Haus Helios

Helle Freude. Stilvolles, lichtdurchflutetes Traumhaus.

 

Details

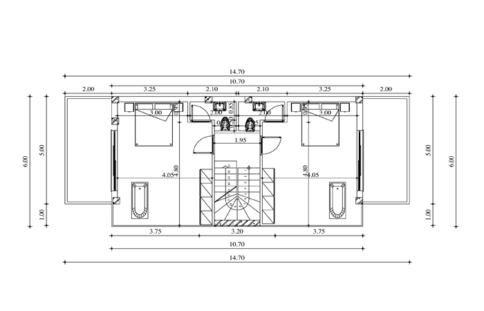
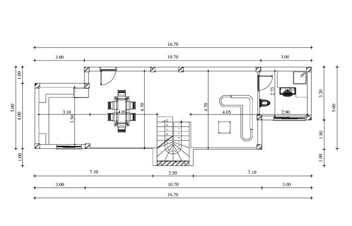
  • 141,80 m² bebaute Fläche
  • Aufgeteilt in 77,60 m² Erdgeschossfläche und 64,20 m² Obergeschossfläche
  • Natursteinelemente im Erdgeschoss
  • Bodentiefe Fenster im EG und OG
  • 2 große Balkonflächen à 10 m² mit Brüstung aus Glas – Bodenbelag in Naturstein oder gefliest
  • Dachüberstand
  • 20 % der bebauten Fläche als gepflasterte Hausumrandung
 
 

Lassen Sie sich inspirieren

 
 
 
 
 

Draufsichten und Grundrisse

 
 
 
 
 
 

Kontakt

G I S Global Immobilien
Service GmbH
Oberer Graben 51, 86152 Augsburg Deutschland
Telefon: +49 (0) 821 / 748296-0 

Kontakt aufnehmen

Newsletter abonnieren

 
 

Copyright © G I S Global Immobilien Service GmbH - Immobilien Griechenland - individuelles Bauen Griechenland - 1998-2019. Alle Rechte vorbehalten.