X-Mas
 
G I S Haus Iktinos

G I S Haus Iktinos

Klassisch schön. Unsere traditionelle Hausvariante.

 

Details

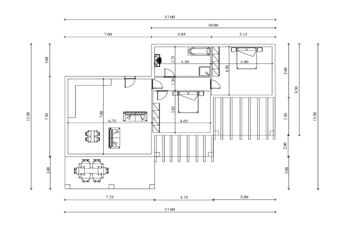
  • 120,50 m² bebaute Fläche auf einer Ebene
  • Außenwand Naturstein – Innenwand Ziegel
  • 2 Terrassenflächen (17,50 m² und 9,50 m²) mit Holzpergola
  • 21,75 m² überdachte Terrassenfläche
  • Säulen und Bodenbelag bei allen Terrassenflächen in Naturstein
 
 

Lassen Sie sich inspirieren

 
 
 
 
 

Draufsicht und Grundriss

 
 
 
 
 

Kontakt

G I S Global Immobilien
Service GmbH
Oberer Graben 51, 86152 Augsburg Deutschland
Telefon: +49 (0) 821 / 748296-0 

Kontakt aufnehmen

Newsletter abonnieren

 
 

Copyright © G I S Global Immobilien Service GmbH - Immobilien Griechenland - individuelles Bauen Griechenland - 1998-2019. Alle Rechte vorbehalten.