X-Mas
 
G I S Haus Ortansia

G I S Haus Ortansia

Natursteinbauweise in Perfektion. Vereint mit modernem Wohnkomfort.

 

Details

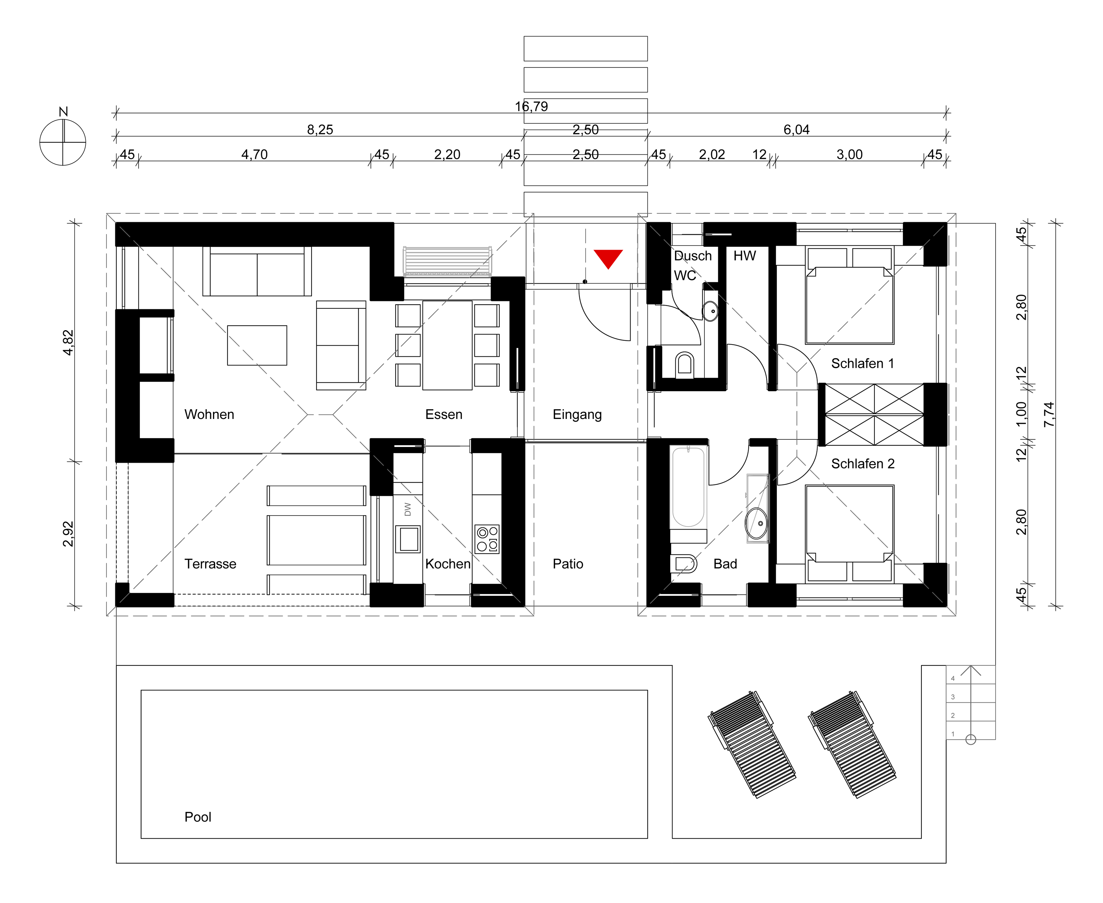
  • ca. 101 m² bebaute Fläche auf einer Ebene
  • insgesamt ca. 63 m² Terrassenflächen
  • davon ca. 15 m² überdachte Terrassenflächen
  • Außenwand Naturstein – Innenwand Ziegel
  • Natursteinverkleidung auf der Terrasse

Das Haus Ortansia gliedert sich in ein Wohn- und ein Schlafhaus, die durch die Eingangsschleuse miteinander verbunden sind. Beim Betreten des Hauses öffnet sich der Blick auf einen kleinen Patio, den dahinterliegenden Außenpool und das Meer. Von hier werden Wohn- und Schlafhaus und das Dusch-WC erschlossen. Der angrenzende Wohn-Essraum mit abtrennbarer Küche öffnet sich zu einer überdachten Terrasse. Durch das Fenster neben dem offenen Kamin wird die Abendsonne eingefangen. Die beiden Schlafräume sind nach Osten orientiert (Morgensonne). Das Badezimmer hat einen direkten Zugang zum Poolbereich.

 
 
 

Lassen Sie sich inspirieren

 
 
 
 
 

Draufsicht und Grundriss

 
 
 
 
 

Kontakt

G I S Global Immobilien
Service GmbH
Oberer Graben 51, 86152 Augsburg Deutschland
Telefon: +49 (0) 821 / 748296-0 

Kontakt aufnehmen

Newsletter abonnieren

 
 

Copyright © G I S Global Immobilien Service GmbH - Immobilien Griechenland - individuelles Bauen Griechenland - 1998-2019. Alle Rechte vorbehalten.