X-Mas
 
G I S Haus Lithos

G I S Haus Lithos

Schlicht und vornehm. Gelungene Symbiose aus Naturstein und Ziegel.

 

Details

  • 140,48 m² bebaute Fläche
  • Aufgeteilt in jeweils 70,24 m² Erdgeschossfläche und Obergeschossfläche
  • Außenwand im Erdgeschoss aus Naturstein
  • 2 Balkone (8,50 m² und 9,00 m²) mit Bodenbelag in Naturstein oder Fliesen
  • 20 % der bebauten Fläche als gepflasterte Hausumrandung
 
 

Lassen Sie sich inspirieren

 
 
 
 
 

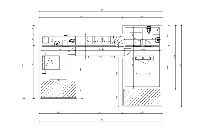
Draufsichten und Grundrisse

 
 
 
 
 
 

Kontakt

G I S Global Immobilien
Service GmbH
Oberer Graben 51, 86152 Augsburg Deutschland
Telefon: +49 (0) 821 / 748296-0 

Kontakt aufnehmen

Newsletter abonnieren

 
 

Copyright © G I S Global Immobilien Service GmbH - Immobilien Griechenland - individuelles Bauen Griechenland - 1998-2019. Alle Rechte vorbehalten.